户型解析 |
在施工地 |
咨询热线:4008005803 |
点击报价
首页
当前位置:首页/案例/案例详情页
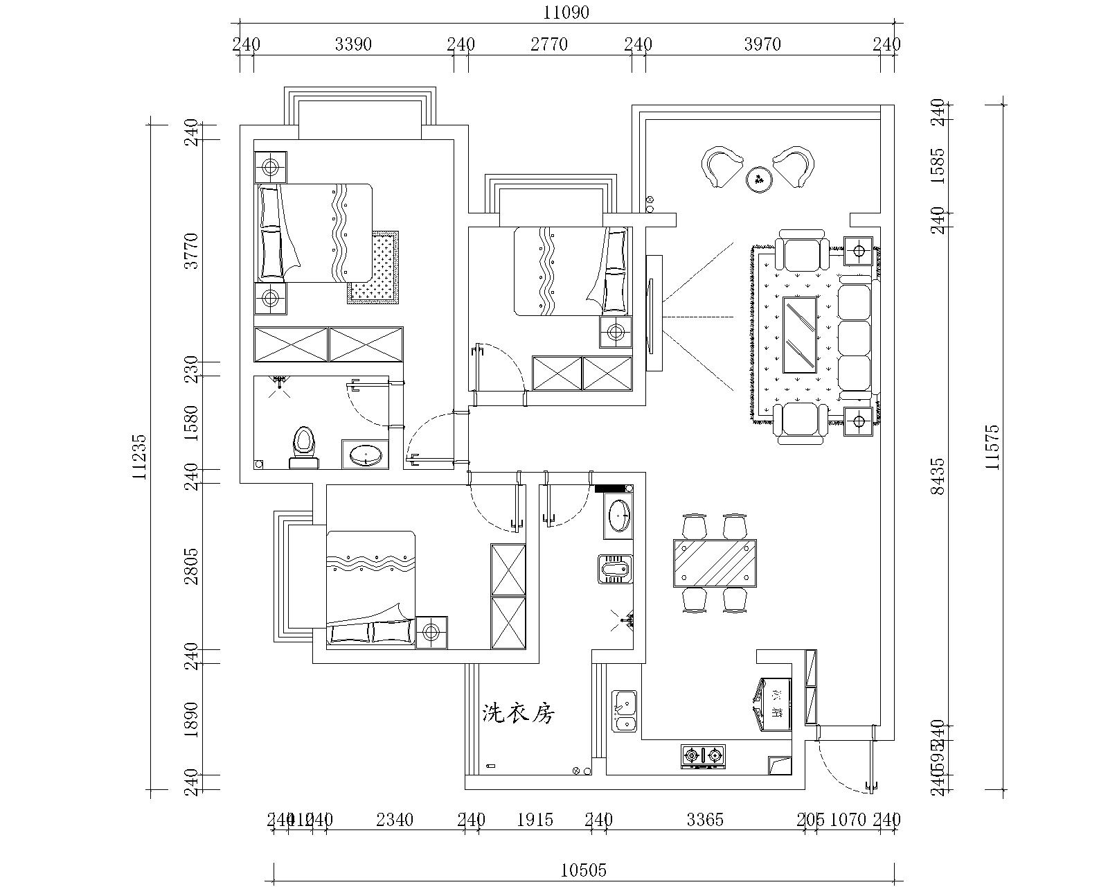
安顺装修公司-时鼎绿洲101平米装修效果图
设计师:吴俊华创建时间:2023-08-06 16:58:47
楼盘
面积101㎡
户型3室2厅2卫
风格现代
本案设计理念:
峰和四季130平米新中式风格
专业整装报价
预约新家装修方案
为了互联网安全,我们已对您的个人信息加密*
猜你想看
查看更多>>
107m²|现代简约|三居室
115m²|现代简约|三居室
128m²|现代简约|三居室
150m²|现代简约|三居室
140m²|中式|三居室
装修计算器
已有 81695 位业主获取了装修预算
所在城市*
房屋户型
房屋面积*
手机号码*
*您的信息将被严格保密,请放心填写
您家的装修预算 ????? 元
材料费(元)
??????
人工费(元)
设计费(元)
质检费(元)